MUR QUI ROULE N'AMASSE PAS...

Pour ce projet nous avons disposé de 9 heures ou nous avons simulé une agence d’architecture d’intérieur et comme dans une vraie agence nous nous sommes réparti des rôles : 1 chef de projet, 1 assistant de chef de projet, 1 concepteur plastique, 2 concepteurs technique et 2 dessinateurs projeteurs. Durant deux jours nous avons travaillé en collaboration en mettant à profit les compétences de chacun.
Ce travail est le résultat d’une collaboration avec Michael Delagrees et trois élèves de Master 2 (restauration et réhabilitation du patrimoine bâti).
Collaboration sur le projet d'aménagement avec :
Perrine Baud, Sarah Berthet-nivon, Camille Chaline, Thomas Chauffour, Katell Le Noac'h et Marion Lépée
L’enjeu concernant ce site rural de Launay Gicquel était d’arriver à intégrer, au sein de deux bâtis anciens, un atelier manuel, un atelier d’herboristerie convertible en espace d’hébergement, un atelier d’artiste, une cuisine semi-pro et une salle de consultation adaptable en salle de réunion. Au regard de la multiplicité de ses usages, mais aussi de la forte hétérogénéité visible sur les bâtis, la problématique dégagée a été la suivante : comment uniformiser ces usages ainsi que la plasticitédu site afin de favoriser une expérience collective ?
En réponse à cela, le parti-pris a été de générer un dispositif central, surmonté decloisons coulissantes. Celui-ci, inhérent aux deux bâtiments, permet d’instaurer une cohérence, un fil conducteur dans cette réhabilitation. De plus, il permet aux usagers de se regrouper autour de cet élément, mais aussi de moduler l’espace en fonction de leurs besoins.
Comment uniformiser l'hétérogéneité des usages et du site pour favoriser une experience collective?
During 9 hours we simulated an architectural agency. Our department where composed by: 1 Project Chief, 1 Assistant's chief, 1 Visual Designer, 2 technical Designers, and 2 Design Drafter.
For this work we collaborated with Michael Delagrees and three MA's students.
Collaborators for this project:
Perrine Baud, Sarah Berthet-nivon, Camille Chaline, Thomas Chauffour, Katell Le Noac'h et Marion Lépée
The issues of the project was to rehabilitate two old building, and put one mechanical workshop, one herbalism workshop convertible into accommodation space, one artist's studio, a semi-professional kitchen and a consultation room adaptable into a meeting room. In view of these different uses and the heterogeneity of theses buildings, the problematic was:
How to make uniform the variety of uses and the design to promote the collective experience?
We chose to implement a central element with sliding walls. This element brings coherence in this rehabilitation. Moreover the element can be used as a place where users gather, and the space can be modulate according to their needs.
Comment uniformiser l'hétérogéneité des usages et du site pour favoriser une experience collective?



PRINCIPE SPATIAL

MUR COULISSANT permet de changer la taille de la pièce selon les besoins des usagers.

PRINCIPE DU MUR COULISSANT // COUPE
// BÂTIMENT A

COUPE AA'

PLAN BÂTIMENT A RDC

PLAN BÂTIMENT A ÉTAGE

JOUR // HERBORISTERIE

NUIT // HÉBERGEMENT

VUE IMMERSIVE // BÂTIMENT A RDC // ATELIER COMMUN ET TRAVAIL ARTISANAL
// BÂTIMENT B



COUPE BÂTIMENT B
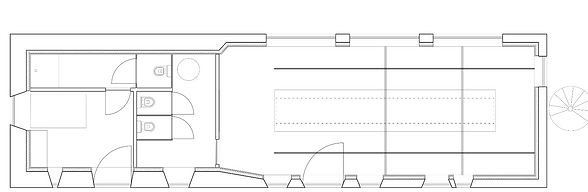
PLAN BÂTIMENT B RDC
VUE IMMERSIVE // BÂTIMENT B RDC // CUISINE


OSSATURE BOIS
BOIS MASSIF// CHÊNE
DÉTAILS TECHNIQUES // OSSATURE BOIS// SYSTÈME DE ROULEMENT DE LA CLOISON

